KJØP NØKKELFERDIG HUS PÅ FATLAND!
I desse dagar prøver me å få i gang eit prosjekt der me opparbeider 4-5 tomter, byggjeklare, og med veg, vatn, avløp, straum og breiband inn på kvar tomt. 
Utgangspunktet for desse tomtene er vårt standard universelle hus, alt på eitt golv. Spesialdesigna for eldre, men perfekt også for barnefamiliar.
Sjå kartet nedanfor, der du ser heile bustadfeltet til høgre, og området for dette spesielle prosjektet til venstre. Dette prosjektfeltet er i høgre kartet vist med ein grøn firkant.
Me må ha nokre ting på plass før me kan fullføra planlegginga. Truleg vil me rundt nyttår vita om me kan setja i gang prosjektet. Og om alt går i orden, kan du kanskje flytta inn i nytt hus før sommaren!
Fellesområdet rett nedanfor feltet er så godt som ferdig allereie. Ta familien med ein dag det er fint vér, og test det. Sjå også den flotte ballbingen med moderne kunstdekke sytti meter ovanfor. Og når du først er på tur den vegen, så ligg Fatlandskogen aktivitetsområde berre hundre meter vidare. Og Gullhaug, med det fantastiske utsynet.
Følg med vidare på denne sida!
Vil du at me skal setja deg opp på epostlista vår, slik at du får fortløpande info etter kvart som ting fell på plass? Heilt uforpliktande? Send då ein epost om dette, til arne.gjerde@outlook.com.
19.10.2025
VÅRT STANDARD NØKKELFERDIGE HUS
Me har altså per i dag berre éin hustype som me vil byggja, iallfall på 3 av tomtene. Den fjerde tomta kan alternativt delast opp i to, med småhus på kvar av dei.
Korfor me berre har éin hustype? Jo, det er for å gjera husa billegare for deg. 
Dette er ein hustype som me har utvikla sjølv. Som me har bygt før, som me har budd i, og funne ut at er perfekt for eldre folk. Men også for barnefamiliar, det har me også prøvt. Alt er på eitt golv, ingen trapper, verken inne eller ute. 
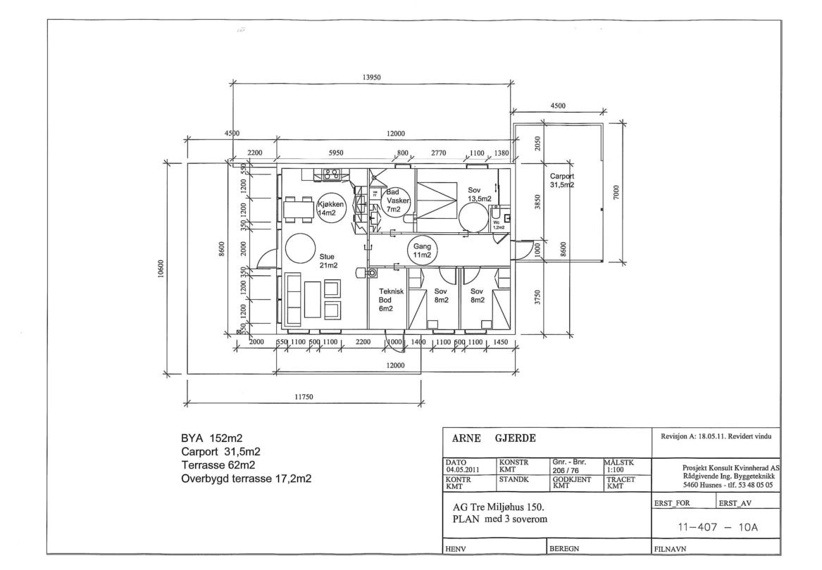
Stove med integrert kjøken, 3 soverom, bad, ekstra WC, pluss eit teknisk rom med garderobe/bod-funksjon mm. Stor terrasse, delvis under tak. Passeleg stor hage, på tomt som er 6-800 m2 stor. Carport, som også gir tak over inngangsdør. Utebod, som del av carporten. Tilpassa rullestol og barnevogn, både ute og inne.
Er du handyman/woman, og gjerne vil gjera noko sjølv? Du kan få huset veldig mykje billegare på den måten. Me syter for alt grunnarbeid, og å få opp tett hus, pluss nokre vegger inne. Så bestemmer du sjølv kva av det resterande du heller vil gjera sjølv, ute og/eller inne. Husbankfinansiering reknar me med at det blir. 
Som sagt, me bur sjølv i eit slikt hus, så du kan berre komma og sjå sjølv. Avtal tid.
Sjå nedanfor korleis dette standardhuset vårt ser ut.
19.10.2025
LITT MEIR OM HUSET
Har du lyst på einebustad, men har ikkje råd? Då skal du likevel melda deg til oss, for kanskje har du råd likevel? Folk meiner det er altfor dyrt å byggja eller kjøpa hus i dag, men det finst altså ei råd. Og gode råd.
Grunnflata på sjølve huset er 103 m2. I tillegg kjem carport på 31 m2 (inkludert eventuell utebod). Og så har du ein delvis overbygd terrasse på 31 m2 mot vest, som du kan utvida til det doble om du vil.
Teknisk så har teikningane ovanfor ein standard som ligg mellom TEK10 og TEK17. Ny teikning vil vera hundre prosent etter TEK17, og fullt ut i samsvar med Husbankens krav.
Huset har både vedomn og varmepumpe som oppvarmingsmetodar. Dermed skulle du vera sikra gjennom vinteren nesten uansett kva som skjer. Fastmonterte stålpanner på taket, det er både regn-, storm- og bombesikkert.
Taket på huset er som du ser av ein enkel konstruksjon, med møne. Ikkje av dei mest elegante, meiner somme, men det er ei rimeleg løysing. Me vurderer også å gå over til flatt tak, noko som truleg blir endå rimelegare for deg. Og så kan du sjølv, enten med det same, eller når du får betre råd, byggja eit meir spektakulært tak. Om du ønskjer.
19.10.2025

Back to Top